
The Casey Davey Suites project is a premium residential apartment development located in St. Vincent & the Grenadines. Designed to combine contemporary aesthetics with structural efficiency, the project features multi-storey suites that emphasize durability, functionality, and comfort. With its modern architectural design and precise engineering detailing, Casey Davey Suites sets a new standard for mid-rise residential developments in the region.
The project focuses on achieving a balance between architectural elegance and engineering practicality through the integration of coordinated design disciplines, including structure and MEP systems. The result is a robust, sustainable, and well-coordinated residential complex meeting both client and local regulatory standards.
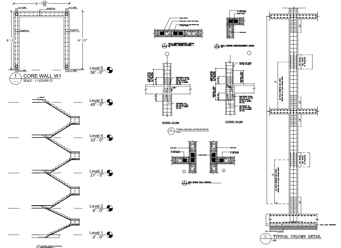
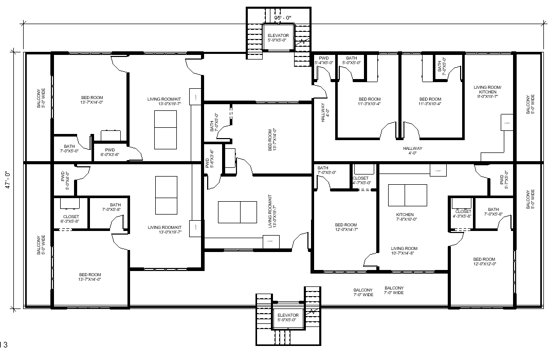
WYSE International was responsible for the complete structural and MEP design scope of the project, along with full BIM modeling and documentation. Our team ensured that all design elements were coordinated across disciplines, minimizing conflicts and optimizing construction efficiency. The scope of work included:
– Structural design and analysis of the apartment building.
– BIM modeling for architectural, structural, and MEP components.
– Detailed MEP system design including HVAC, electrical, and plumbing.
– Generation of coordinated drawing sheets for construction documentation.
– Technical review and cross-discipline clash verification.
location
St. Vincent & the Grenadines
sector
Building / Apartments
technology
AutoCAD
scope of work
BIM Modeling, Structural Design, MEP Design, Drawing Sheets Generation
Status
Ongoing – Final design and documentation completed

We go beyond design and delivery—offering continued technical support, model updates, and lifecycle insights even after project handover.