Shop Drawings & Rebar Detailing

From Design Intent to Detailed Execution.

We provide precise, construction-ready shop drawings and CAD drafting services that bridge the gap between design and on-site implementation—ensuring accuracy, coordination, and buildability.

Shop drawings are the technical backbone of construction. They translate architectural and engineering concepts into detailed, dimensionally accurate plans used by fabricators, site engineers, and subcontractors. At WYSE, our drafting team delivers compliant, clash-free, and approval-ready drawings tailored to each discipline—saving time, minimizing errors, and supporting seamless execution on site.

Rebar Detailing & Drafting Process

Drafting That Builds Confidence in Construction

Every line we draw is rooted in technical accuracy and construction logic. Our team works in coordination with architects, engineers, and contractors to develop drawings that ensure dimensional clarity, buildability, and compliance with local regulations and international standards.

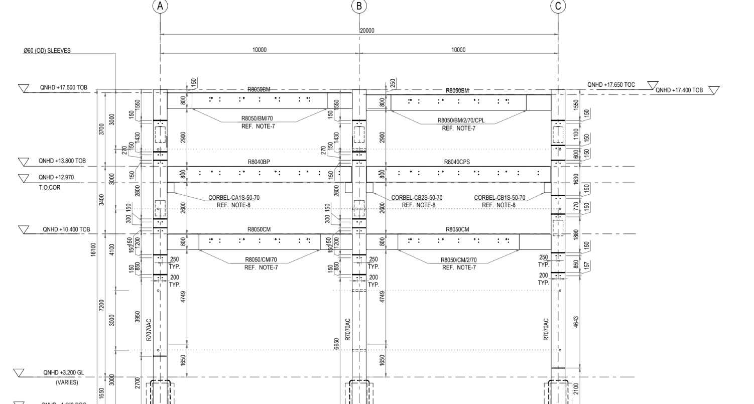
Rebar Detailing & BBS Preparation

We provide fully detailed reinforcement shop drawings for all concrete elements—slabs, beams, columns, walls, and foundations—prepared in compliance with international standards and site-specific bar bending schedules (BBS).

Rebar Drafting & CADS RC Expertise

Our team specializes in rebar detailing using CADS RC, delivering accurate reinforcement drawings and bar bending schedules (BBS) aligned with structural design requirements. We ensure compliance with international codes and project-specific standards, producing clear, clash-free outputs ready for consultant approval and on-site execution.

IFC to Rebar Construction-Level Detailing

We convert IFC (Issued for Construction) structural drawings into shop-level rebar details, including bar sizes, shapes, spacing, lap lengths, bends, and fixing instructions for site use.

Redlines, As-Builts & Rebar Revisions

We revise reinforcement drawings to reflect site changes, incorporate consultant markups, and produce as-built rebar documentation for approvals and recordkeeping.

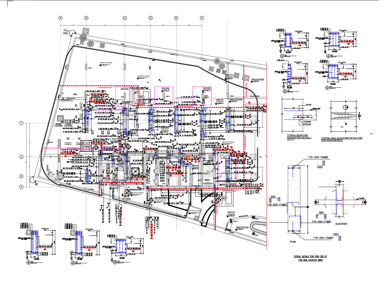
Rebar Integration for Complex Elements

Our detailing team handles rebar layouts for complex zones like staircases, raft foundations, retaining walls, and core walls—ensuring clear buildable drawings for site teams and steel fixers.

Cross-Discipline Rebar Coordination

We coordinate reinforcement with architectural and MEP penetrations to avoid clashes and ensure seamless site installation across all trades, with a focus on constructability and site practicality.

Better process

The process of working with us

We specialize in a wide range of construction services, including residential, commercial, and industrial projects. From initial design to final inspection, we work closely with our clients to understand their unique needs and vision.

01.

Share Your Drawing Scope

Send us your IFC drawings, BOQs, and mark-ups—we’ll review and confirm scope, priorities, and drawing standards.

02.

Receive a Drafting Proposal

You’ll receive a clear proposal with drawing quantities, timelines, formats, and review cycles tailored to your project needs.

03.

Start Drawing & Coordination

Upon approval, our drafting team begins work and delivers drawings in batches—ensuring quality checks, consultant markups, and revisions are smoothly managed.