Residential Villas

WYSE International played a key role in the development of a series of luxury residential villas at the Red Sea Port, UAE, offering a comprehensive suite of services including BIM modeling, structural design, construction planning, cost estimation, and project coordination. These high-end residences demanded engineering precision, seamless collaboration, and architectural harmony—goals we delivered on with efficiency and innovation.

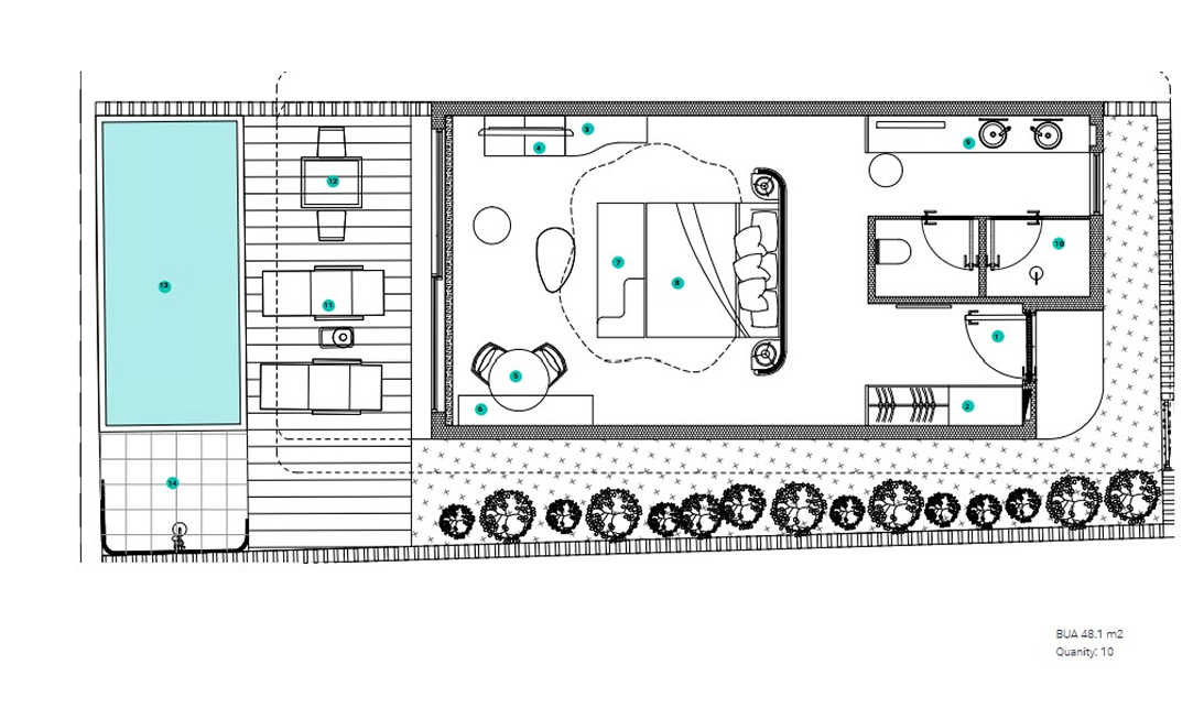
Set along the picturesque Red Sea coastline, the residential villas were designed to offer elegant, private living spaces with modern amenities and sustainable design principles. Each villa featured unique layouts, open-plan interiors, and integrated MEP systems—all of which required careful planning and coordination to bring the vision to life without compromising structural safety or constructability.

Project Overview

The scale and complexity of this development made digital design integration crucial. WYSE International led this effort by deploying BIM workflows and real-time coordination tools to align all stakeholders, minimize delays, and manage the intricate design and execution demands of the project.

The Red Sea Residential Villas project exemplifies WYSE International’s capability to deliver integrated engineering services for luxury developments. From the digital modeling phase to on-site execution strategies, our involvement ensured smooth delivery, aesthetic integrity, and enduring structural quality in a demanding coastal environment.

project gallery

location

Red Sea Port, UAE

sector

buildings, civil

technology

ETABS, Autodesk Revit, SAP 2000.

scope of work

Structural Design and Analysis, BIM Modeling

completion date

17 June 2024

Call Support Center 24/7

+92 339 4040734

Write To Us

info@wyseintl.com

Contact us

Get in touch with us

[forminator_form id="8383"]