
WYSE International was honored to support the construction of the Jamia Mosque in Kasur, Pakistan, by providing detailed shop drawings, rebar detailing, steel estimation, and BIM coordination services. The mosque’s architectural significance and cultural value demanded a high level of technical accuracy, respect for traditional design elements, and structural integrity—all of which we delivered with care and precision.
The Jamia Mosque was envisioned as a spiritual and community landmark that would serve generations to come. Its architectural design included large open prayer halls, domes, arches, and minarets—elements that posed structural challenges while also requiring faithful execution of heritage-driven aesthetics.
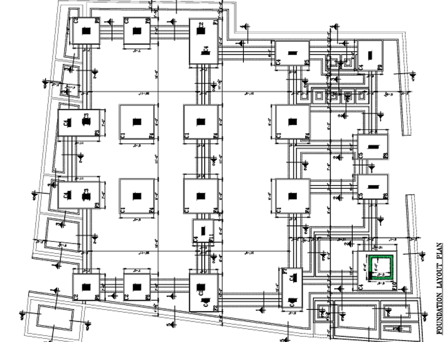
To achieve the dual goals of structural resilience and design fidelity, our team integrated BIM and CAD workflows to meticulously plan each phase of detailing and construction. Every rebar, connection, and structural element was modeled and verified to ensure long-term safety and alignment with the project’s architectural grandeur.
WYSE International’s contribution to the Jamia Mosque project reflects our ability to blend structural engineering expertise with a deep respect for cultural architecture. By using BIM and detailing best practices, we helped transform an ambitious vision into a structurally sound, beautifully executed house of worship—reinforcing our commitment to delivering value on spiritually and socially meaningful projects.
location
Kasur, Pakistan
sector
buildings, civil
technology
CADS RC, Autodesk AutoCAD, MS Excel
scope of work
BIM Modeling, Rebar Detailing, Steel Estimation and Bar Bending Schedule (BBS)
completion date
17 December, 2024

We go beyond design and delivery—offering continued technical support, model updates, and lifecycle insights even after project handover.